Bursztynowe Osiedle
Projekt konkursowy osiedla mieszkaniowego
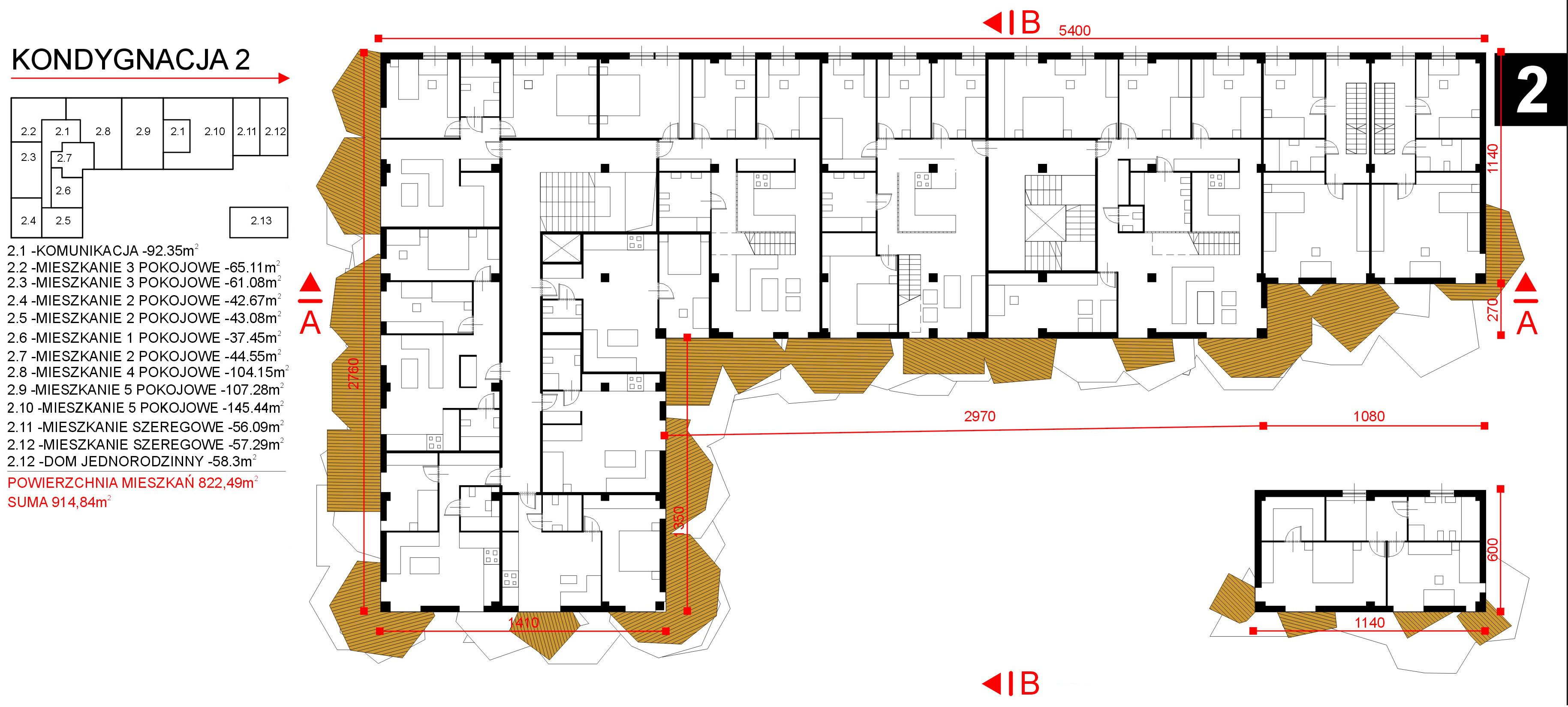
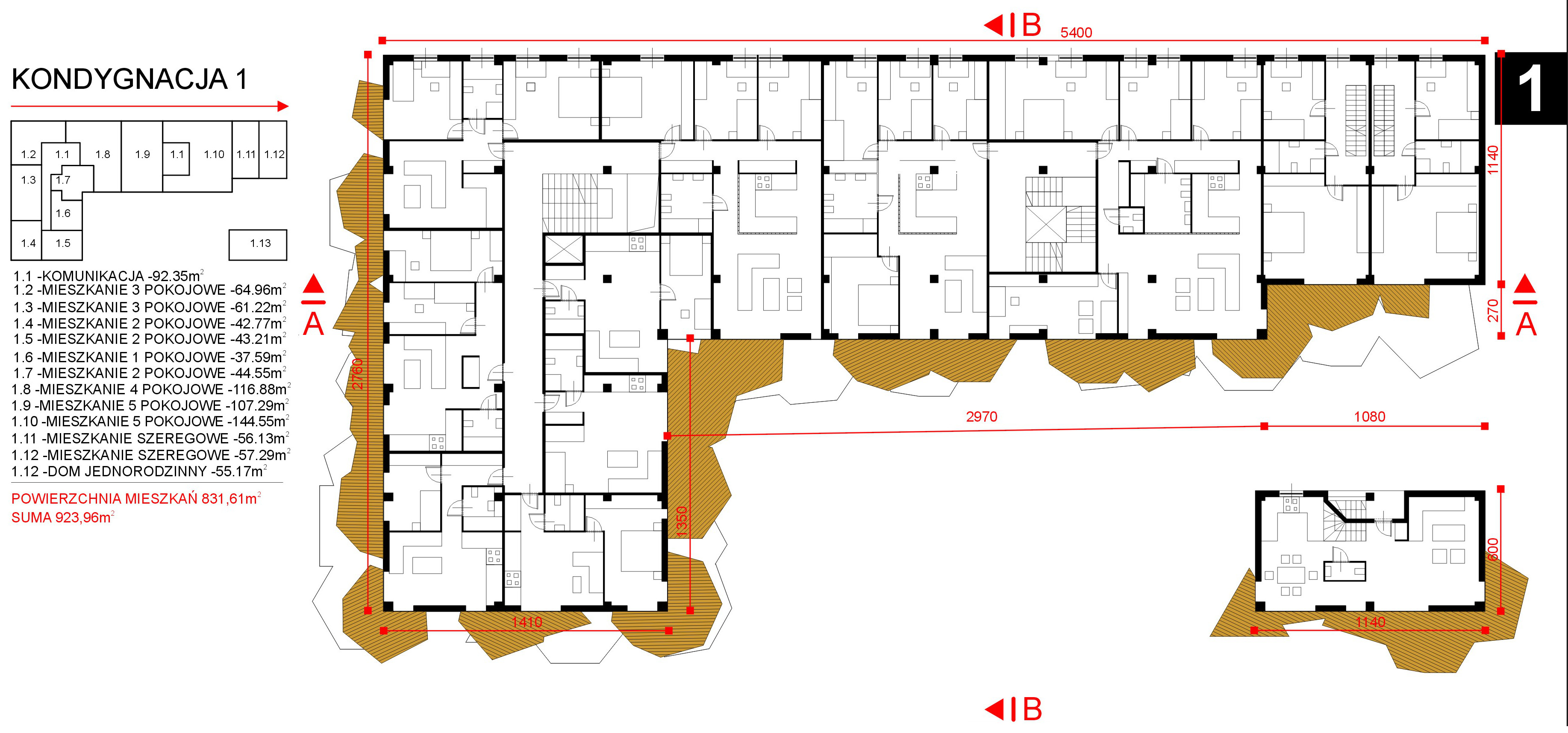
Budynek projektowany modułowo, w kształcie litery "L". Wewnętrzny dziedziniec znajdujący się powyżej terenu otaczającego uzyskano dzieki wykonanie podziemnego garażu. Poszczególne moduły odpowiadają różnym typom zabudowy mieszkaniowej:
- moduł pierwszy zorganizowany jako budynek korytarzowy zawiera najmniejsze mieszkania 1, 2, 3 i 4 pokojowe
- moduł drugi zorganizowany jako klatkowiec zawiera mieszkania 4 i 5 pokojowe
- moduł trzeci zorganizowany jako część szeregowa zawiera dwa mieszkania rozplanowane na 3 piętrach
- moduł czwarty to budynek jednorodzinny z miejscami garażowymi pod budynkiem
Projekt konkursowy: 2009



